biuro@md-invest.pl
530 658 026 / 502 290 139
ul. Konwiktorska 10b, 21-400 Łuków
o firmie
inwestycje
kontakt
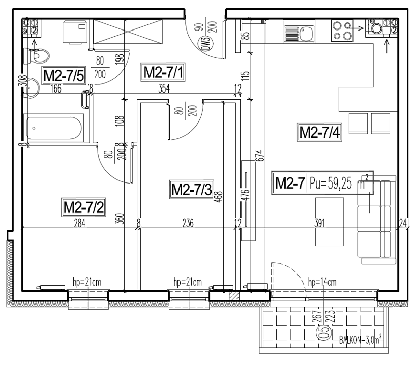
Aleje Kaczorowskiego: Blok nr 1, cz. A Mieszkanie: M2-7
sprzedane
rzut
Pomieszczenia
7/1
Korytarz
8.18m
2
7/2
Pokój
9.97m
2
7/3
Pokój
10.76m
2
7/4
Salon + kuchnia
25.63m
2
7/5
Łazienka
4.71m
2
0/0
Razem
59.25m
2
7/6
Balkon
3.00m
2
sprzedane
plan piętra
zagospodarowanie
lokalizacja
Rezerwacja
×
Podaj
numer telefonu
lub
adres email
a skontaktujemy się z Tobą
Nie chcesz czekać?
Zadzwoń do nas.
530 658 026
502 290 139
email
telefon
Wyrażam zgodę na przetwarzanie moich danych osobowych podanych w powyższym formularzu w celu kontaku przez MD-INVEST s.c. R. Makowski, G. Duczkowski, zgodnie z regulaminem
(RODO)
5+osiem
Ruszyła sprzedaż!
×
Kolejny etap sprzedaży mieszkań przy
ul. Kresów Wschodnich -Etap V
Wolne lokale
530 658 026